안녕하세요 오토캐드 선생님입니다!
오늘은 슬라이드 게이트(SLIDE GATE)에 대해 설명드리겠습니다!
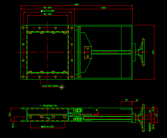
도면은 맨 밑에 첨부하였으니, 참고하시기 바랍니다^^

SLIDE GATE(슬라이드 다중)는 다양한 산업 및 응용 분야에서 사용 가능한 문형의 장치입니다. 이 장치는 이동을 방해할 수 있으며 주로 물류, 교통, 안전 및 자동화 시스템에서 사용됩니다. 아래에 Slide Gate의 주요 특징과 사용자에 대해 선택하십시오:
구조 : Slide Gate는 일반적으로 길쭉한 판 형태의 문으로, 수평 또는 수직으로 방향입니다. 이 도어는 정상적으로 움직일 수 있는 트랙 또는 가이드 통로에 있는 블록입니다.
용도 :
물류 및 창고 관리 : Slide Gate는 창고나 물류 시설에서 화물을 간편하게 관리하기 위해 사용됩니다. 보통 배낭나 다른 물품을 보관하는 배낭과 통합되어 사용됩니다.
운송 및 운송 : 운송용으로 사용하기 편리한 슬라이드 슬라이드는 차량의 운송을 허용하거나 제한하기 위해 사용됩니다.
Slide Gate는 안전한 장소나 레스토랑과 같은 장소에서 보안 목적으로 사용됩니다.
자동화 시스템 : Slide Gate는 자동화된 프로세스에서 부품의 이동 또는 제품을 구별하기 위해 사용됩니다.
제어 및 자동화 : Slide Gate는 수동으로 조작하거나 자동으로 제어할 수 있습니다. 오류가 발생한 슬라이드 게이트는 센서, 모터 및 위험 시스템을 통해 자동으로 작동하며 특정 조건이 충족됩니다.
재료 및 내구성 : Slide Gate는 다양한 재료로 제작될 수 있으며, 사용 환경에 따라 강철, 알루미늄, 플라스틱 등 다양한 재료로 제조될 수 있습니다. 내구성과 내부는 사용자에 따라 결정됩니다.
Slide Gate는 다양한 범위에서 사용 가능하며, 특정 캠핑에 맞게 설계 및 조정됩니다.
감사합니다~
'캐드 실무 활용' 카테고리의 다른 글
| 로터리밸브 (ROTARY VALVE) 캐드 도면 및 설명 (0) | 2023.09.22 |
|---|---|
| 자주 사용하는 캐드(건축) 용어 약어 (0) | 2023.09.21 |
| (최신) 캐드 및 설계직 연령별 평균 연봉 (1) | 2023.09.04 |
| 캐드 블록 수정안됨 & 캐드 블록 안들어가짐 (해결법) (0) | 2023.09.01 |
| 캐드 특수문자 및 기호 만드는법 (0) | 2023.08.31 |